>

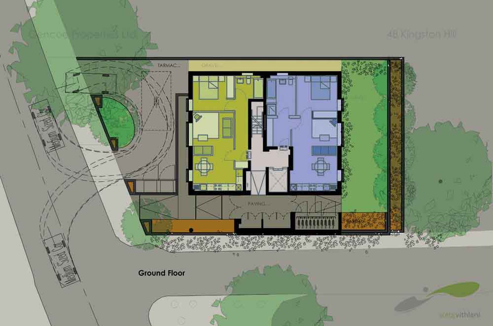
Kingston Hill, Kingston, Surrey - 9 new built appartments


The project was originally designed by TP Bennett. Suraj Vithlani tookover the project after planning stage (RIBA stage C), produced set of construction drawings for the builders to execute the project and to achieve building regulations approval and negotiated discharge of onerous planning conditions with Kingston Borough Council design and conservation officers. The project was built in time and within budget. All the flats were sold for full asking price just before the housing market crashed in late 2008.

Click image above to see the full set of detailed drawings.