>

BLACKFRIARS STATION - THAMES LINK 2000 STATION REDEVELOPMENT


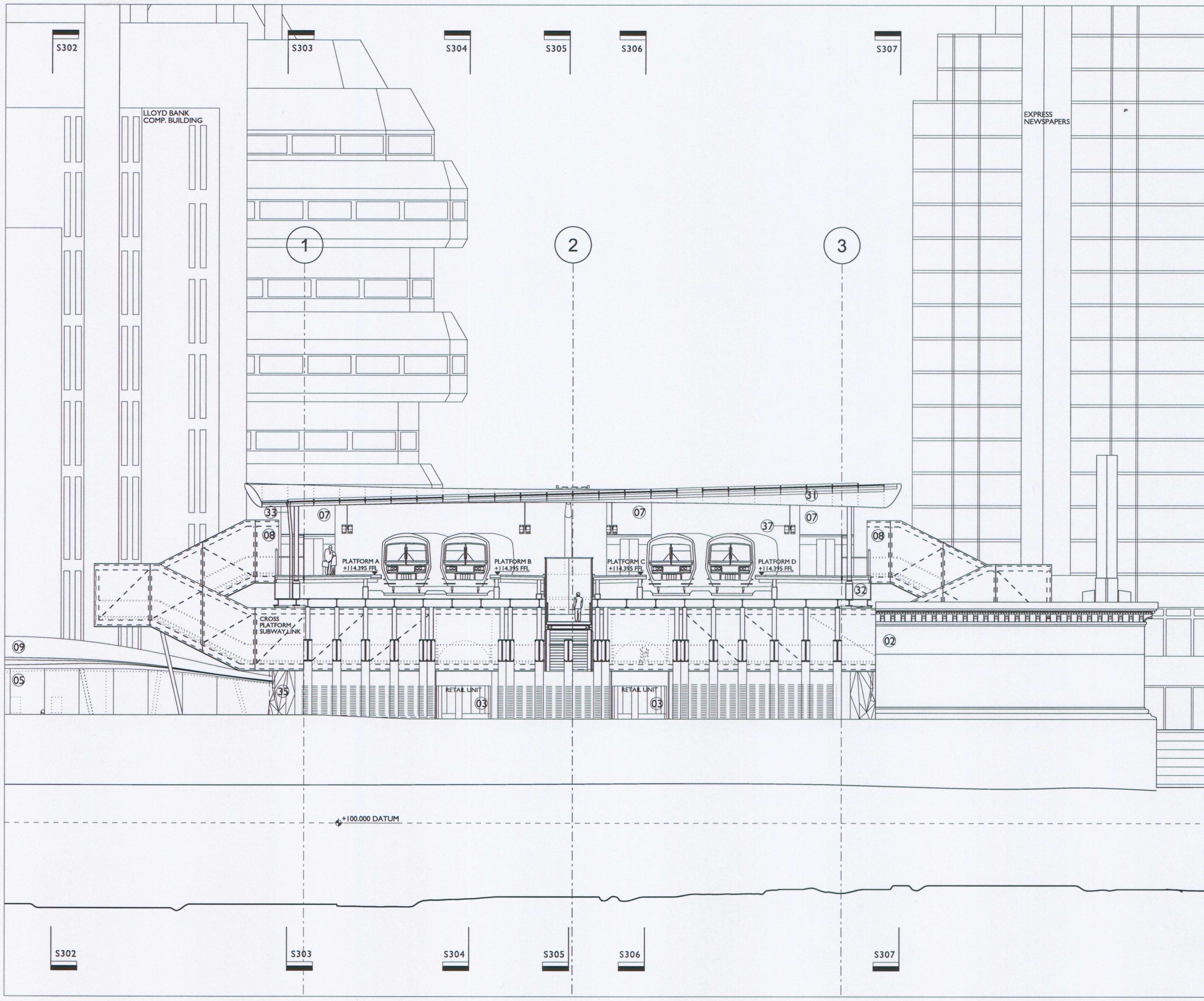
The original competition winning proposal by ALSOP architects was to create new station platforms on a widened Blackfriars bridge with station entrances on both north and south sides of river Thames. Suraj was employed at ALSOP architects and acted as project architect for the South entrance and ticket hall.

Options for stair design - choices between structural expressions and cladding variations.

The south entrance could be entered from both the east and the west side.

The new south entrance was to be slotted amidst existing bridge abutment - brick arched buttresses. Roof of the east ticket hall is shaped like a water droplet that enters and flows through the bridge abutment to emerge as a canopy on the west side.

Roof element 3d, sections and elevations.

This roof element is a visual connector between the east and the west entrances and an important orientation guide.

Stair access from the 'cross-platform subway link' to the central plaform at bridge level had to be threaded through existing cast-iron bridge structure. (left)

Stair from main concourse to the 'cross-platform subway link' had to fit within existing brick abutment arches. (right)

Two prominant staircases connect the 'cross-platform subway link' to the two edge platforms.

Ticket hall roof construction.

Rainwater gutter in differing locations.

3D form-work diaphragms.